- 加拿大28
- 电话:021-51875578
- 传真:021-57443237
- 手机:13916747333
- 邮箱:a15566@126.com
- 地址:奉贤区工业综合开发区942号
当前位置:首页 >> 电站阀门
>> 高温高压阀门 >> 高加联成四通阀 更新时间 2025-12-4 21:29:59
高温高压阀门
| 高加联成四通阀 |
![]() |
产品名称: | 高加联成四通阀 | |||||
| 型号: | GJR963/964Y | ||||||
| 口径: | DN15-300 | ||||||
| 压力: | PN1.6-42.0MPa | ||||||
| 材质: | 碳钢、不锈钢、铬钼钢等 | ||||||
|
|||||||
| 您正在浏览:【高加联成四通阀】 | |||||||
高加联成四通阀详细介绍
高加联成四通阀产品概述:
高加加热器用进口阀(入口阀)、出口阀(出口止回阀)系列产品分别用于50MW-1000MW锅炉高压加热器进口出口处,作为高加的保护阀门。当高压加热器管系列破裂,引起水位升高,达到报警水位时,快速启闭阀打开,使入口阀迅速关闭,同时也使止回阀迅速关闭,切断高压加热器给水,使高压加热器解列,锅炉给水则通过旁路管进入省煤器,从而起到保护高压加热器的作用,使机组正常运行。本入口阀和止回阀必须垂直安装,阀门与管道焊好后,应清理干净,清除焊渣及污物。冷凝水管道应为不锈钢材质,在进口处装设过滤网。
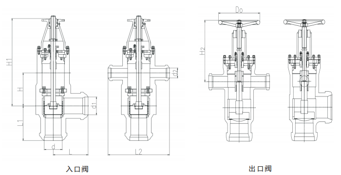
高加联成四通阀产品特点:1、入口阀
入口阀呈角式布置,外置活塞式结构,给水由侧面引入,向下进入高压加热器,阀上方由两个旁路管道与出口的止回阀的旁路旁管相接。阀门有上下两个密封面,高压加热器正常运行时,入口阀开启,阀瓣上浮,与上密封面接触。当高压加热器发生故障时,而不经过高压加热器,使高压加热器解列。入口阀主要由上下两个阀座,下阀座镶焊在阀体上,上阀座与填料室是一体,装在阀体上,可以拆卸。阀瓣上下两个密封面均采用硬质合金堆焊而成,阀杆表面经氮化处理、抗擦伤、耐腐蚀。活塞缸为焊接件,缸体内表面经磷镍镀层处理,有良好的防腐及耐磨性。活塞由“O”型密封环密封,支架起支撑活塞缸及连接阀体的作用,上部有两个焊接法兰,其内孔与活塞下腔连通。一个为进冷凝水管道,一个为排冷凝水管道。
2、止回阀
止回阀呈角式布置,有三个进口,上部有两个旁路进口与入口旁路管相连,下部与高压加热器出口相连,中间位置支管为出口,该出口支管与锅炉给水管道相连。止回阀主要由阀体、阀盖、阀瓣、阀杆等组成。阀体中镶焊阀座,阀座和阀瓣密封面采用硬质合金等离子喷焊而成,阀体下部一侧有一个管接头用来连接向高压加热器内注水的管道。阀杆表面经氮化处理,具有良好的抗擦伤性和耐腐蚀性。手轮其作用是当高压加热器解列,给水旁路供给锅炉时,下阀口应关闭,若阀瓣不下来时,需转动手轮,使阀杆向下运动,顶下阀瓣把阀门关闭。

高加联成四通阀零件材料:

高加联成四通阀外形结构图:

高加联成四通阀外形尺寸表:

高加联成四通阀订货参数:
尊敬的客户!如果您需要订购我公司高加联成四通阀产品,咨询时请说明公称压力、公称通径、阀体材质、工作压力、工作温度等,本产品液压系统为阀门内部自身结构,纯机械,非外加执行系统,执行机构动作安全可靠,最快关闭时间可小于3秒,其操作动力源于管道系统的锅炉高压给水,而非液压油或其它介质。
提示:本文中所有文字、数据、图片均只适用于参考,需要了解更详细的【高加联成四通阀】参数、选型、价格等请联系我们,我们将竭诚为您服务!



















