- 加拿大28
- 电话:021-51875578
- 传真:021-57443237
- 手机:13916747333
- 邮箱:a15566@126.com
- 地址:奉贤区工业综合开发区942号
当前位置:首页 >> 气动阀门
>> 气动球阀 >> 气动保温对夹式球阀 更新时间 2025-12-4 21:21:30
气动球阀
| 气动保温对夹式球阀 |
![]() |
产品名称: | 气动保温对夹式球阀 | |||||
| 型号: | BQ671PPL | ||||||
| 口径: | DN15-300 | ||||||
| 压力: | 1.6-4.0MPa | ||||||
| 材质: | 碳钢、不锈钢等 | ||||||
|
|||||||
| 您正在浏览:【气动保温对夹式球阀】 | |||||||
气动保温对夹式球阀详细介绍
气动保温对夹式球阀产品概述:
气动保温对夹式球阀根据用户需要夹套注入蒸气、导热油、冷却水、冷气等。使用整个阀门长温或降温达到所需要的温度。能防止介质结晶。主要应用于化工、石油、制药、冶金等行业的系统管路中,主要作用是输送在常温状态下会凝固、易结晶的介质。具有结构紧凑、体积小、重量轻、密封性能好、启闭灵活、安装方便等特点。
气动保温对夹式球阀技术规范:
| 设计标准 | ASME B 16.34 GB/T12224 |
|---|---|
| 结构长度 | ASME B 16.10 GB/T12221 |
| 连接法兰 | ASME B 16.5、JB/T 79 |
| 试验和检验 | JB/T9092 API 598 |
| 适用介质 | 重油、胶类等易凝固介质 |
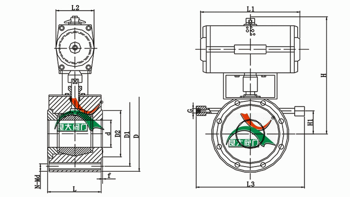
气动保温对夹式球阀外形结构图:

气动保温对夹式球阀连接尺寸:
| 公称通径 | 外形尺寸 | 连接法兰尺寸 | |||||||||||
|---|---|---|---|---|---|---|---|---|---|---|---|---|---|
| d | L | L1 | L2 | L3 | H | H1 | G | D | D1 | D2 | f | N-Md | |
| 15 | 14 | 35 | 140/178 | 62/75 | 150 | 170/176 | 15 | 1/2″ | 90 | 65 | 45 | 2 | 4-M14 |
| 20 | 19 | 38 | 140/178 | 62/75 | 160 | 175/181 | 20 | 1/2″ | 100 | 75 | 55 | 2 | 4-M14 |
| 25 | 25 | 42 | 140/214 | 62/91 | 190 | 180/214 | 20 | 1/2″ | 110 | 85 | 65 | 2 | 4-M14 |
| 32 | 29 | 50 | 164/214 | 75/91 | 210 | 215/243 | 25 | 1/2″ | 130 | 100 | 78 | 3 | 4-M18 |
| 40 | 38 | 60 | 164/246 | 75/101 | 230 | 225/263 | 30 | 1/2″ | 145 | 110 | 85 | 3 | 4-M18 |
| 50 | 48 | 70 | 190/295 | 91/112 | 250 | 248/274 | 30 | 1/2″ | 160 | 125 | 100 | 3 | 4-M18 |
| 65 | 64 | 95 | 210/295 | 101/112 | 270 | 258/284 | 45 | 1/2″ | 180 | 145 | 120 | 3 | 4/8-M18 |
| 80 | 76 | 118 | 247/395 | 112/139 | 300 | 300/326 | 50 | 1/2″ | 190 | 160 | 135 | 3 | 8-M18 |
| 100 | 95 | 140 | 276/478 | 127/176 | 340 | 315/370 | 70 | 1″ | 215/230 | 180/190 | 155/160 | 3 | 8-M18/20 |
| 125 | 112/118 | 175/195 | 348/562 | 159/206 | 360 | 375/440 | 80 | 1″ | 245/270 | 210/220 | 185/188 | 3 | 8-M18/24 |
| 150 | 135/150 | 210/260 | 378/724 | 176/228 | 420 | 428/500 | 95 | 1″ | 280/300 | 240/250 | 210/218 | 3 | 8-M22/24 |
提示:本文中所有文字、数据、图片均只适用于参考,需要了解更详细的【气动保温对夹式球阀】参数、选型、价格等请联系我们,我们将竭诚为您服务!



















