- 加拿大28
- 电话:021-51875578
- 传真:021-57443237
- 手机:13916747333
- 邮箱:a15566@126.com
- 地址:奉贤区工业综合开发区942号
当前位置:首页 >> 排泥阀
>> 池底排泥阀 >> 液动池底排泥阀 更新时间 2025-12-4 21:14:05
池底排泥阀
| 液动池底排泥阀 |
![]() |
产品名称: | 液动池底排泥阀 | |||||
| 型号: | H742X | ||||||
| 口径: | DN50-500 | ||||||
| 压力: | 0.6-1.6MPa | ||||||
| 材质: | 铸铁,铸钢,不锈钢等 | ||||||
|
|||||||
| 您正在浏览:【液动池底排泥阀】 | |||||||
液动池底排泥阀详细介绍
液动池底排泥阀产品用途:
液动池底排泥阀又名池底快开排泥阀,主要安装于各类池子底部,作排除泥沙用。是结合国外先进技术自主开发生产,是现目前国内质量最稳定的排泥阀。还可按照用户要求生产和加工。液动池底排泥阀作用原理:
液动池底排泥阀由阀体,液压缸,活塞,阀杆,阀瓣组成。液压缸是液体工具,液体作为动力,活塞,阀杆作为开关。开启只需要一分钟可以打开阀板,此阀必须配用手动换向阀或电磁阀可远距离控制排泥阀开关。该阀密封件性能强,开关灵活,检修方便,使用寿命长等特点,寿命可长达五年以上,保用期十八个月。
液动池底排泥阀产品实物图:

液动池底排泥阀采用标准:
设计与制造标准:GB12235-89
法兰连接标准:GB/T17241.6-98
试验和检验标准:GB13927-92
阀门材料标准:GB12226-89
液动池底排泥阀技术参数:
阀体部分 |
型号 |
H742X-10 |
H742X-16 |
|
公称压力(MPa) |
1.0 |
1.6 |
||
试验 压力 |
密封(MPa) |
1.1 |
1.76 |
|
强度(MPa) |
1.5 |
2.4 |
||
适用介质 |
水 |
|||
温度(°C) |
<80 |
|||
驱动部分 |
驱动介质 |
水(使用压缩空气,订货注明) |
||
驱动压力(MPa) |
0.3—1.0 |
|||
介质温度(°C) |
<50 |
|||
控制部分 (另配) |
控制器输入电压(V) |
AC220 |
||
电磁阀线圈电压(V) |
AC220 |
|||
电磁阀线圈功力(W) |
10—15 |
|||
液动池底排泥阀零件材料:
零件名称 |
阀座 |
阀瓣 |
阀杆 |
缸体 |
活塞板 |
活塞皮碗 |
材料牌号 |
HT200 |
HT200 |
不锈钢 |
HT200 |
HT200 |
耐磨丁晴橡胶 |
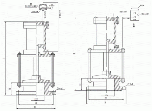
液动池底排泥阀外形结构图:

液动池底排泥阀连接尺寸:
公称通径
|
D
|
D1
|
H
|
H1
|
Z-φd
|
进液管连接
|
100
|
215
|
180
|
450
|
110
|
8-18
|
1/2”
|
150
|
280
|
240
|
490
|
110
|
8-23
|
1/2”
|
200
|
335
|
295
|
530
|
110
|
8-23
|
1/2”
|
250
|
390
|
350
|
570
|
110
|
12-23
|
1/2”
|
300
|
440
|
400
|
610
|
140
|
12-23
|
3/4”
|
400
|
565
|
515
|
710
|
140
|
16-25
|
1”
|
500
|
670
|
620
|
810
|
160
|
20-25
|
1”
|
液动池底排泥阀安装示意图:

大口径液动池底排泥阀产品实物图:

提示:本文中所有文字、数据、图片均只适用于参考,需要了解更详细的【液动池底排泥阀】参数、选型、价格等请联系我们,我们将竭诚为您服务!



















