- 加拿大28
- 电话:021-51875578
- 传真:021-57443237
- 手机:13916747333
- 邮箱:a15566@126.com
- 地址:奉贤区工业综合开发区942号
当前位置:首页 >> 闸阀
>> 平板闸阀 >> 伞齿轮平板闸阀 | 伞齿轮平板闸阀 |
![]() |
产品名称: | 伞齿轮平板闸阀 | |||||
| 型号: | Z543WF | ||||||
| 口径: | DN50-1000 | ||||||
| 压力: | 1.6-16.0MPa | ||||||
| 材质: | 铸钢、不锈钢等 | ||||||
|
|||||||
| 您正在浏览:【伞齿轮平板闸阀】 | |||||||
伞齿轮平板闸阀详细介绍
伞齿轮平板闸阀应用范围:
伞齿轮平板闸阀有带导流孔型、无导流孔型、调节型等几种结构形式,适用于天然气、油品、化工、城建、环保等行业,其中抗硫系列产品适用于含硫化氢介质、流速快、杂质多、腐蚀严重的天然气长输管线。
伞齿轮平板闸阀工作原理:
伞齿轮平板闸阀是一种关闭件为平行闸板的滑动阀。其关闭件可以是单闸板或是其间带有撑开机构的双闸板。闸板向阀座的压紧力是由作用与浮动闸板或浮动阀座的介质压力来控制。如果是双闸板平板闸阀,则两闸板间的撑开机构可以补充这一压紧力。
伞齿轮平板闸阀基本参数:
公称压力 |
|
产品型号 |
1.0~16.0MPa 150~900Lb |
无导流孔 |
Z543WF、Z543WY、Z543WD、Z543WbF、Z543WbY |
有导流孔 |
Z543NF、Z543DF、Z543YF、Z543F、Z543D、Z543Y |
伞齿轮平板闸阀性能规范:
压力等级 |
常温下压力试验(MPa) |
适用温度(℃) |
适用介质a |
|||||||
壳体 |
左密封 |
右密封 |
低压密封 |
“G”型 |
“D”型 |
普通型 |
“KZ”型 |
“Z”型 |
||
公称压力(MPa) |
1.0 |
1.5 |
1.1 |
1.1 |
0.6 |
-29~250 |
-45~121 |
-29~121 |
含H2S和CO2>500Mg/m3的介质 |
石油、天然气、水等 |
1.6 |
2.4 |
1.76 |
1.76 |
0.6 |
||||||
2.5 |
3.75 |
2.75 |
2.75 |
0.6 |
||||||
4.0 |
6.0 |
4.4 |
4.4 |
0.6 |
||||||
6.4 |
9.6 |
7.04 |
7.04 |
0.6 |
||||||
10.0 |
15.0 |
11.0 |
11.0 |
0.6 |
||||||
16.0 |
24.0 |
17.6 |
17.6 |
0.6 |
||||||
磅级 Lb |
150 |
2.93 |
2.07 |
2.07 |
0.6 |
|||||
300 |
5.52 |
5.52 |
5.52 |
0.6 |
||||||
400 |
10.0 |
7.31 |
7.31 |
0.6 |
||||||
600 |
15.0 |
11.03 |
11.03 |
0.6 |
||||||
900 |
22.4 |
16.54 |
16.54 |
0.6 |
||||||
伞齿轮平板闸阀零件材料:
零件名称 |
阀体、阀盖 |
闸板 |
阀杆 |
阀座 |
阀杆螺母 |
密封圈 |
填料 |
密封指 |
“Z” |
WCB |
合金钢(特殊处理) |
不锈钢 |
合金钢(特殊处理) |
铝青铜 |
填充四氟 |
填充四氟、膨胀石墨 |
耐油密封脂 |
“KZ”型 |
抗硫不锈钢 |
抗硫密封脂 |
伞齿轮平板闸阀采用标准:
API 6D |
管道阀门 |
JB/T5298 |
管线用钢制平板闸阀 |
ANSI B16.5a |
管法兰及法兰管件 |
B/T79.1~79.2J |
整体铸钢管法兰 |
GB/T13927 |
通用阀门压力试验 |
JB/T9092 |
阀门的检验与试验 |
JB/TQ814 |
钢制平板闸阀产品质量分等 |
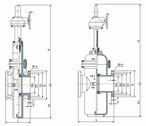
伞齿轮平板闸阀外形结构图:

伞齿轮平板闸阀连接尺寸:
|
公称压力
(MPa)
|
尺寸(mm) |
||||||||||||||||
DN(mm) |
100 |
125 |
150 |
200 |
250 |
300 |
350 |
400 |
450 |
500 |
600 |
700 |
800 |
900 |
1000 |
||
1.0 |
L |
229 |
254 |
267 |
292 |
330 |
356 |
381 |
406 |
432 |
457 |
508 |
610 |
660 |
711 |
811 |
|
H |
770 |
870 |
965 |
1200 |
1360 |
1560 |
1740 |
1930 |
2160 |
2420 |
2800 |
3200 |
3640 |
4050 |
4467 |
||
H1 |
无导流孔 |
114 |
132 |
150 |
188 |
225 |
247 |
275 |
312 |
335 |
380 |
445 |
490 |
560 |
610 |
715 |
|
有导流孔 |
214 |
257 |
300 |
388 |
475 |
547 |
625 |
712 |
785 |
880 |
1045 |
1190 |
1360 |
1510 |
1715 |
||
|
重量
(kg)
|
无导流孔 |
87 |
130 |
140 |
175 |
275 |
350 |
510 |
610 |
830 |
1150 |
1780 |
2350 |
3380 |
4460 |
5740 |
|
有导流孔 |
94 |
140 |
151 |
198 |
297 |
378 |
550 |
658 |
896 |
1240 |
1922 |
2530 |
3650 |
4817 |
6200 |
||
1.6 |
L |
229 |
254 |
267 |
292 |
330 |
356 |
381 |
406 |
432 |
457 |
508 |
610 |
660 |
711 |
811 |
|
H |
770 |
870 |
965 |
1200 |
1360 |
1560 |
1740 |
1930 |
2160 |
2420 |
2800 |
3200 |
3640 |
4050 |
4467 |
||
H1 |
无导流孔 |
114 |
132 |
150 |
188 |
225 |
247 |
275 |
312 |
335 |
380 |
445 |
490 |
560 |
610 |
715 |
|
有导流孔 |
214 |
257 |
300 |
388 |
475 |
547 |
625 |
712 |
785 |
880 |
1045 |
1190 |
1360 |
1510 |
1715 |
||
|
重量
(kg)
|
无导流孔 |
90 |
135 |
150 |
185 |
295 |
400 |
550 |
660 |
1030 |
1300 |
1950 |
3010 |
3800 |
5150 |
6360 |
|
有导流孔 |
97 |
145 |
162 |
200 |
318 |
432 |
596 |
713 |
1100 |
1400 |
2100 |
3250 |
4100 |
5560 |
6868 |
||
2.5 |
L |
229 |
254 |
267 |
292 |
330 |
356 |
381 |
406 |
432 |
457 |
508 |
610 |
660 |
711 |
811 |
|
H |
770 |
870 |
965 |
1200 |
1370 |
1560 |
1740 |
1970 |
2260 |
2420 |
2800 |
3230 |
3640 |
4050 |
4467 |
||
H1 |
无导流孔 |
114 |
132 |
150 |
188 |
225 |
247 |
275 |
312 |
335 |
380 |
445 |
490 |
560 |
610 |
715 |
|
有导流孔 |
214 |
257 |
300 |
388 |
475 |
547 |
625 |
712 |
785 |
880 |
1045 |
1190 |
1360 |
1510 |
1715 |
||
|
重量
(kg)
|
无导流孔 |
95 |
145 |
163 |
200 |
330 |
420 |
575 |
735 |
1110 |
1380 |
2030 |
3210 |
4020 |
5320 |
6600 |
|
有导流孔 |
103 |
156 |
176 |
216 |
356 |
450 |
621 |
794 |
1198 |
1490 |
2192 |
3466 |
4340 |
5745 |
7130 |
||



















